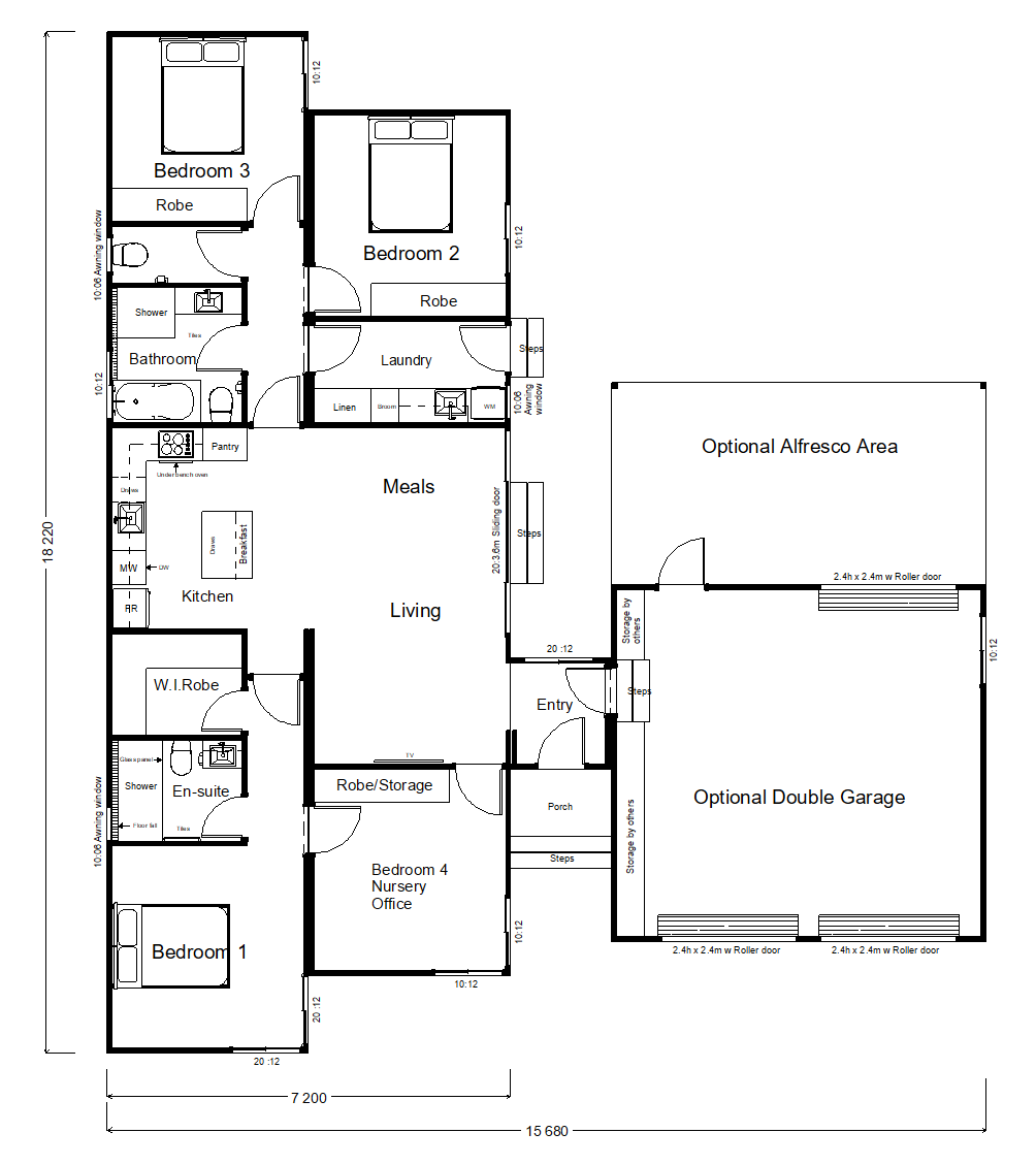
AMALFI

4 x BEDROOMS 2 x BATH 1 x LAUNDRY

The Amalfi is a stylish and spacious family home designed for modern living. With four comfortable bedrooms, two well-appointed bathrooms, and a practical laundry, it combines functionality with contemporary design. Its open-plan layout creates a light and welcoming feel, perfect for entertaining or relaxing with family. Like all OzModBuildings designs, the Amalfi can be customised to suit your lifestyle—adjust floor plans, finishes, and features to make it uniquely yours.

Enquire