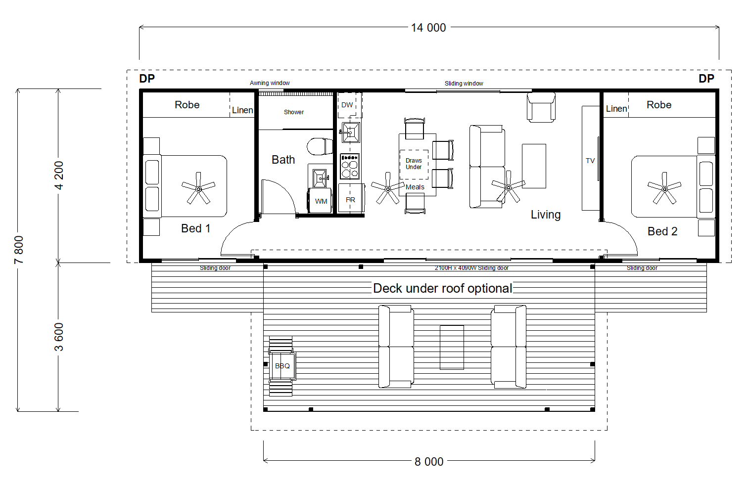
SIENA

2 x BEDROOMS 1 x BATH

The Siena is a smart and stylish two-bedroom home that makes the most of every space. Featuring a combined bathroom and laundry, it’s designed for modern, low-maintenance living without sacrificing comfort. Its open-plan layout brings in plenty of natural light, creating a warm and welcoming feel throughout. Like all OzModBuildings designs, the Siena can be fully customised—adjust floor plans, finishes, and features to suit your taste and lifestyle, making it the perfect compact home or investment option.

enquire